Infoline 0831.841970
Rosanna Saponaro 392.9548498
Antonio Semeraro 393.9371087
Italiano

FRANCAVILLA FONTANA - VIA VERGA


170.000 €
180 m2
3 Camere
2 Bagni
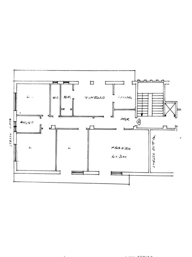
Nel comune di Francavilla Fontana, in via Verga, proponiamo in vendita spazioso appartamento di circa 180 mq situato al terzo piano di un edificio servito da ascensore, ideale per famiglie che cercano ambienti ampi e confortevoli.
L'immobile si distingue per la generosa metratura e per la distribuzione funzionale degli spazi, ed è composto da:
- Ingresso accogliente;
- Ampio soggiorno, perfetto per momenti di relax e convivialità;
- Cucina abitabile con camino e cucinino separato;
- Tre camere da letto spaziose;
- Due bagni;
- Comodo ripostiglio.
La proprietà dispone di due balconi, uno fronte strada e uno sul retro, che garantiscono buona luminosità e aerazione naturale agli ambienti.
A completare la soluzione, al piano scantinato, è disponibile un garage di circa 48 mq, ideale sia come posto auto che come spazio deposito.
Il garage è venduto separatamente rispetto all'appartamento, al prezzo di Euro 25.000.
Si tratta di una soluzione abitativa ampia, luminosa e funzionale, situata in una zona comoda della città.
Contattaci per maggiori informazioni o per fissare un appuntamento per la visita.
TEL.: 0831/841970 WHATSAPP 379/2113643
IMMOBILCASA, VIA ROMA 75, FRANCAVILLA FONTANA.
Caratteristiche principali
Codice
IMM_BRBR2026
Città
Francavilla Fontana
Categoria
Appartamento
Locali
5
Camere
3
Bagni
2
Mq
180
Balconi
2
Piano
3
Classe energetica
In fase di valutazione
Stato Immobile
Buono
Grado
Medio
Posizione
Periferia
Panorama
Vista Aperta
Tipo Soggiorno
Soggiorno
Tipo Cucina
Abitabile
Riscaldamento
Autonomo
Tipo Riscaldam.
Caldaia
Tipo Impianto
Radiatori
Fonte Energetica
Metano
Acqua Calda
Autonoma
Raffrescamento
Split
Infissi
Legno
Serramenti
Buono
Persiana
Tapparella PVC
Pavim. Giorno
Ceramica
Pavim. Notte
Ceramica
Pavim. Cucina
Ceramica
Pavim. Bagno
Ceramica
Accessori
Ascensore, Camino, Porta Blindata, Ripostiglio
Mappa
Via Verga 52, Francavilla Fontana (BR)
Scopri la tua
rata ideale
Agenti venditori
Semeraro Antonio
Semeraro Antonio
+39 393 9371087
Saponaro Rosanna
Saponaro Rosanna
Cel +39 392 9548498
Cookie preference