Infoline 0831.841970
Rosanna Saponaro 392.9548498
Antonio Semeraro 393.9371087
Italiano

CONTRADA DIFESA - FRANCAVILLA FONTANA


199.000 €
118 m2
2 Camere
1 Bagni
In una delle zone più caratteristiche della campagna di Francavilla Fontana, precisamente in Contrada Difesa, proponiamo in vendita una splendida villa con trullo che unisce il fascino dell'architettura tradizionale pugliese al comfort degli spazi abitativi tipici di una casa di campagna. La proprietà si trova a pochi chilometri dal centro, in una posizione riservata ma facilmente raggiungibile, ideale per chi desidera tranquillità e privacy senza rinunciare ai servizi principali.
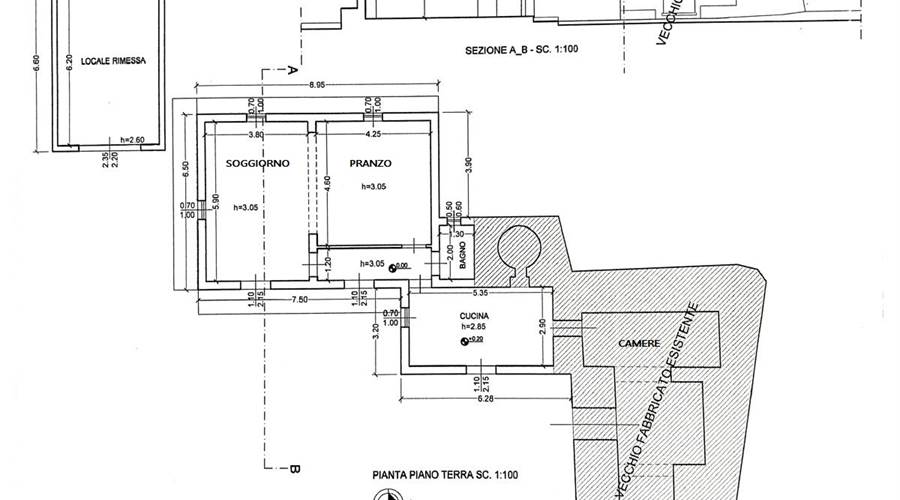
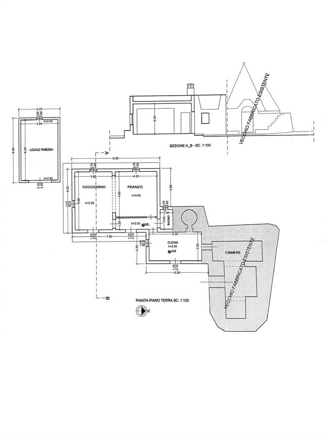
La villa ha una superficie complessiva di circa 118 mq e si presenta composta da:
- Sala da pranzo ampia e luminosa, è il cuore della casa, perfetta per accogliere la famiglia e gli ospiti.
- Cucina dotata di un caratteristico camino tradizionale.
- Due camere da letto situate nel trullo
- Bagno funzionale e ben tenuto.
La proprietà si estende su un terreno di circa 13.000 mq, in parte recintato da un caratteristico muro a secco, elemento tipico del paesaggio pugliese.
All'esterno troviamo:
- Ampio piazzale, ideale come zona parcheggio o area relax, perfetto anche per pranzi e cene all'aperto.
- Forno a legna.
- Cisterna da 700 quintali per la riserva idrica.
- Varie aree del terreno che possono essere valorizzate con giardini, alberi da frutto o zona barbecue.
La conformazione del terreno offre molteplici possibilità di utilizzo, sia ricreativo che agricolo.
Per maggiori informazioni o per fissare una visita , non esitare a contattarci.
IMMOBILCASA, VIA ROMA 75, FRANCAVILLA FONTANA.
TEL.: 0831/841970 WHATSAPP 3792113643
Caratteristiche principali
Codice
IMM_BLNV2025
Città
Francavilla Fontana
Categoria
Villa
Locali
3
Camere
2
Bagni
1
Mq
118
Classe energetica
In fase di valutazione
Stato Immobile
Buono
Tipo Soggiorno
Sala da Pranzo
Tipo Cucina
Abitabile
Riscaldamento
Autonomo
Tipo Riscaldam.
Pompa di Calore
Raffrescamento
Split
Infissi
Metallo
Serramenti
Buono
Persiana
Tapparella PVC
Pavim. Giorno
Ceramica
Pavim. Notte
Ceramica
Pavim. Cucina
Ceramica
Accessori
Aria Condizionata, Camino
Mappa
Contrada Difesa , Francavilla Fontana (BR)
Video
Scopri la tua
rata ideale
Agenti venditori
Saponaro Rosanna
Saponaro Rosanna
Cel +39 392 9548498
Semeraro Antonio
Semeraro Antonio
+39 393 9371087
Cookie preference