Infoline 0831.841970
Rosanna Saponaro 392.9548498
Antonio Semeraro 393.9371087
Italiano

VIA CEGLIE - FRANCAVILLA FONTANA


255.000 €
120 m2
3 Camere
1 Bagni
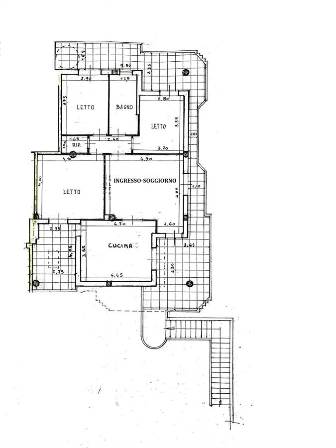
In una zona tranquilla e molto ricercata di Francavilla Fontana, proponiamo in vendita splendido appartamento al primo piano, con ingresso indipendente, facente parte di una costruzione del 2005, mantenuta in condizioni eccellenti.
L'immobile si sviluppa su una superficie di circa 120 mq, caratterizzata da ambienti ampi, ben distribuiti e molto luminosi, grazie alla tripla esposizione e alla presenza di verande su tutto il perimetro dell'abitazione, ideali per momenti di relax o per vivere gli spazi esterni in ogni stagione.
L'accesso alla proprietà avviene al piano terra, dove troviamo un giardino privato, dotato di cancello automatico, con la possibilità di parcheggiare l'auto.
Dal giardino, una scala esterna aperta conduce direttamente all'appartamento, garantendo totale privacy e indipendenza.
L'ingresso si apre su un ampio soggiorno, accogliente e ben illuminato, perfetto come zona living e relax. Adiacente troviamo una cucina abitabile, spaziosa e funzionale, con affaccio diretto sulla veranda sia dalla parte antistante che retrostante. La zona notte è composta da tre camere da letto di generose dimensioni, un bagno e un comodo ripostiglio.
L'abitazione è pronta per essere immediatamente abitata.
A completare la proprietà troviamo un box auto di circa 26 mq, situato al piano scantinato, comodo sia per il parcheggio che come spazio deposito.
Per ulteriori informazioni o per prenotare una visita, non esitate a contattarci.
IMMOBILCASA, VIA ROMA 75, FRANCAVILLA FONTANA.
TEL.: 0831/841970 WHATSAPP 3792113643
Caratteristiche principali
Codice
IMM_BCRL2026
Città
Francavilla Fontana
Categoria
Appartamento
Locali
4
Camere
3
Bagni
1
Mq
120
Classe energetica
In fase di valutazione
Stato Immobile
Buono
Grado
Medio
Posizione
Periferia
Giardino
Privato
Arredi
Arredato
Tipo Soggiorno
Soggiorno
Tipo Cucina
Abitabile
Riscaldamento
Autonomo
Tipo Riscaldam.
Caldaia
Tipo Impianto
Radiatori
Fonte Energetica
Metano
Acqua Calda
Autonoma
Raffrescamento
Split
Infissi
Legno
Serramenti
Buono
Persiana
Persiana Legno
Pavim. Giorno
Ceramica
Pavim. Notte
Ceramica
Pavim. Cucina
Ceramica
Pavim. Bagno
Ceramica
Accessori
Aria Condizionata, Cancello Elettrico, Porta Blindata, Ripostiglio, Veranda
Mappa
Via Ceglie 35, Francavilla Fontana (BR)
Scopri la tua
rata ideale
Agenti venditori
Saponaro Rosanna
Saponaro Rosanna
Cel +39 392 9548498
Semeraro Antonio
Semeraro Antonio
+39 393 9371087
Cookie preference